BenTen Residences by Shimaya Stays
BenTen East - 3-Bedroom Restored Kyoto Townhouse
Located in a quiet lane just minutes away from temples, old-world townscapes and Michelin-starred restaurants, BenTen East makes for an ideal Kyoto base whether your stay lasts for a few days or a few months.
This 2-storey machiya has been restored to showcase the beauty of the traditional wooden townhouse. But it also offers convenience and comfort to a modern traveller through such features as heated flooring, wi-fi, a washing machine and dryer, and a fully-equipped kitchenette. (Convenience stores and a supermarket can be found just a short walk from the residence.)
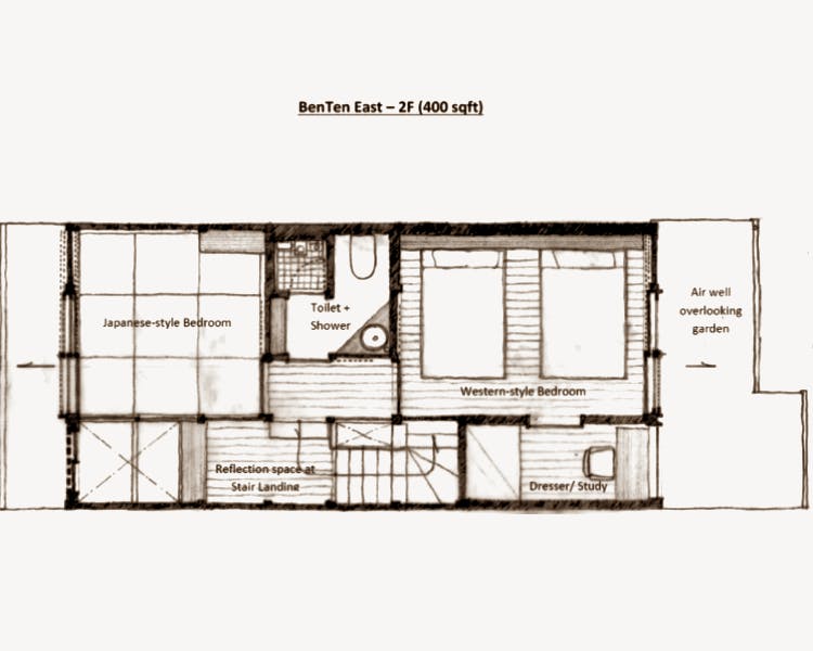
The 3 bedrooms – 1 Japanese and 1 Western on the second floor – give guests a choice between futons and beds. When not in use as a bedroom, the tatami room on the first floor serves as an extra living room.
The main living area opens onto a small garden with a Japanese maple that can also be viewed from the bathroom on the first floor. For the convenience of larger groups, there is a shower and another toilet on the second floor.
Also on the second floor is a bench area for reading or reflection. The atmosphere here changes throughout the day depending on how sunlight filters in from the mushiko-mado, so named because the bars of this traditional window resemble an insect cage.
With a capacity of up to 6 adults, BenTen East is popular with families and travellers interested in design. It has also been chosen as a backdrop for product shoots and photography workshops. To find out about our special rates for photography rentals or longer-term stays, drop us a note via the Contact Us page or at enquiries@shimayastays.com
Photos by Takano Tomomi

















